采用磁致伸縮位移傳感器原理測量沉降,整體式鋁合金殼體,全密封防水結構IP67;高精度穩定可靠傳感器芯片帶零點、滿度,溫度等補償;MODBUS RS485-RTU 數字信號輸出;可替代國外同類型靜水儀產品;可配套無線4G采集模塊及第三方物聯云監控平臺;適用于各種類型工程、結構物的長時間沉降監測。
磁致伸縮靜力水準儀
沉降儀
靜力水準儀
沉降位移傳感器
磁致位移傳感器
沉降監控傳感器
一、磁致伸縮靜力水準儀 PT500-SZY20產品概述及特點:
| 磁致式位移沉降監測 | 高精度、穩定、數字放大電路,絕對誤差小于0.1mm | 應用于: |
| 進口波導絲及芯體材料 | 零點、滿度,溫補、線性補償 | 軌道交通路基、地鐵支撐墻沉降監測 |
| 52直徑304不銹鋼浮子+304浮球導桿 | MODBUS RS485-RTU 數字信號輸出 | 隧道上部山體及建筑物沉降監測 |
| 整體式鋁合金殼體,全密封防水結構 | 可配套無線4G-DTU,實現無線平臺數據監控 | 基坑、核電站、水電站沉降監測 |
| 靈敏度高、精度高、重復性好 | 配套第三方物聯網監控云平臺及移動端APP | 大壩及水利樞紐、高層建筑的基礎沉降監測 |
| 高可靠性、高防護性、極小的溫度系數 | 數據的采集、顯示、統計、分析、下載 | 可替代國外同類型靜水儀產品 |
| 易于安裝、抗電磁干擾能力強、成本經濟耐用 | 平臺、手機移動端預警、APP多方位預警聯動 | |
| 沉降是一個緩慢過程,在任何較短時期,反映到儲液罐液面的變化都會非常細微,能否實時、精確地檢測到這個微小變化,反映出地基的微小沉降,做到防微杜漸,是衡量一個靜力水準儀產品好壞的關鍵,這對系統所集成液位傳感器的實時性、精密性提出了極高要求。由于是戶外安裝,液位傳感器的溫度系數、防水性、防雷擊都是關鍵技術。另外,靜力水準儀整機的安裝尺寸和易更換性也是重要的技術指標。 | ||
| 傳統液位計存在的問題:受傳統測量技術的局限,過去靜力水準儀大多使用基于LVDT原理的電感式液位計(也有極少部分產品采用昂貴的基于CCD攝像頭的光學解決方案),但電感式液位計存在:靈敏度低、測量精度低、溫度系數大、安裝尺寸大、不易更換等一系列缺陷。 | ||
二、磁致伸縮靜力水準儀 PT500-SZY20產品型號:
| 代碼 | 型號 | 類型 | |||||
| PT500 | SZY20 | 磁致式靜力水準儀 | |||||
| 代碼 | 量程(按實際訂購量程填寫) | ||||||
| 100mm | 0~100mm;0~200mm;0~300mm; | ||||||
| 0~500mm;共計4種量程規格 | |||||||
| 代碼 | 輸出信號類型 | ||||||
| OK | RS485(四線制)/供電9-30VDC | ||||||
| OO | 定制 | ||||||
| 代碼 | 綜合精度 | ||||||
| C1 | ±0.1mm(絕對誤差),省略不填 | ||||||
| PT500 | SZY20 | 100mm | RS485 | ||||
三、磁致伸縮靜力水準儀 PT500-SZY20產品參數:

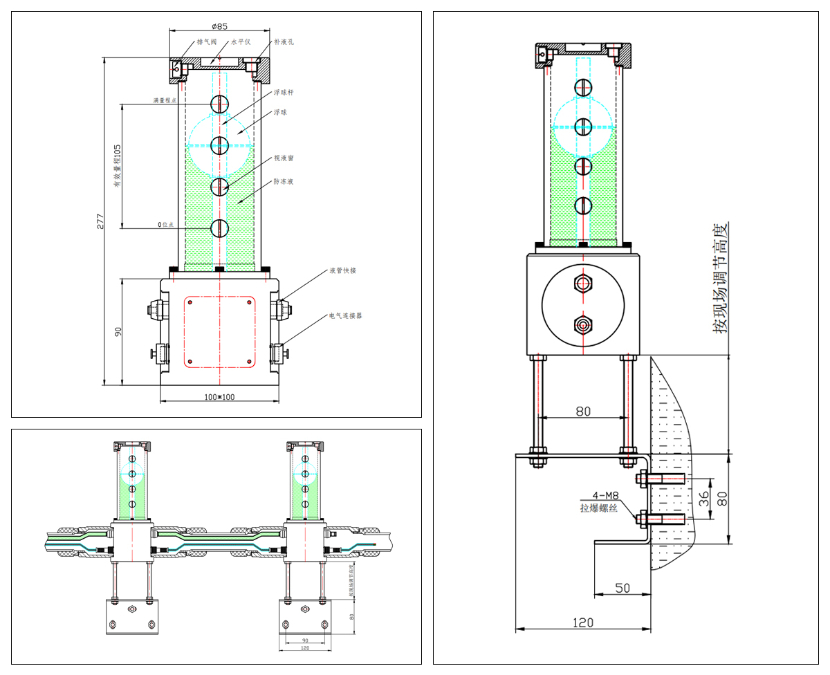
四、磁致伸縮靜力水準儀 PT500-SZY20產品結構:

五、沉降測量原理及計算:

六、磁致伸縮靜力水準儀 PT500-SZY20產品應用:

七、物聯云監控平臺


佛山市普量電子有限公司從事壓力,液位,溫濕度,傾角,位移,測力,沉降,靜水儀,水浸等傳感器,變送器,智慧物聯云平臺,APP,上位機,儀器儀表等數據采集與監控。產品涵蓋自動化、智慧城市(消防/供氣/供暖/給水/環境)、農業、氣象、石油化工、結構安全、基建安全監控等領域。歷經十五年技術沉淀與經驗,貫徹“銳意進取、追求卓越、用戶第一”的企業精神,依靠優秀人才、先進設備、創新技術、專業化團隊,為更多的項目和設備提供優質的產品和服務,滿足市場需求!我們注重品質、誠信為本、服務用戶。普量:感“之”世界,智慧物聯。






服務熱線
QQ咨詢

微信資詢

移動端網站
